Menu

☎ +420 555 508 643

shop@hydrolider.cz
po-pá 9:00 - 15:30

3sekční hydraulický rozvaděč P160l/min s jezdcem s přídavnou plovoucí polohou, ovládaný lankem

Dostupnost: skladem
Odesláno v rámci: 48 hodin
Cena s DPH: 12 122,00 Kč 12122.00
Cena bez DPH: 10 018,18 Kč
quantity ks
přidat na seznam přání
Dodavatel: BADESTNOST
Katalogové číslo: 81.10.31.050

Popis

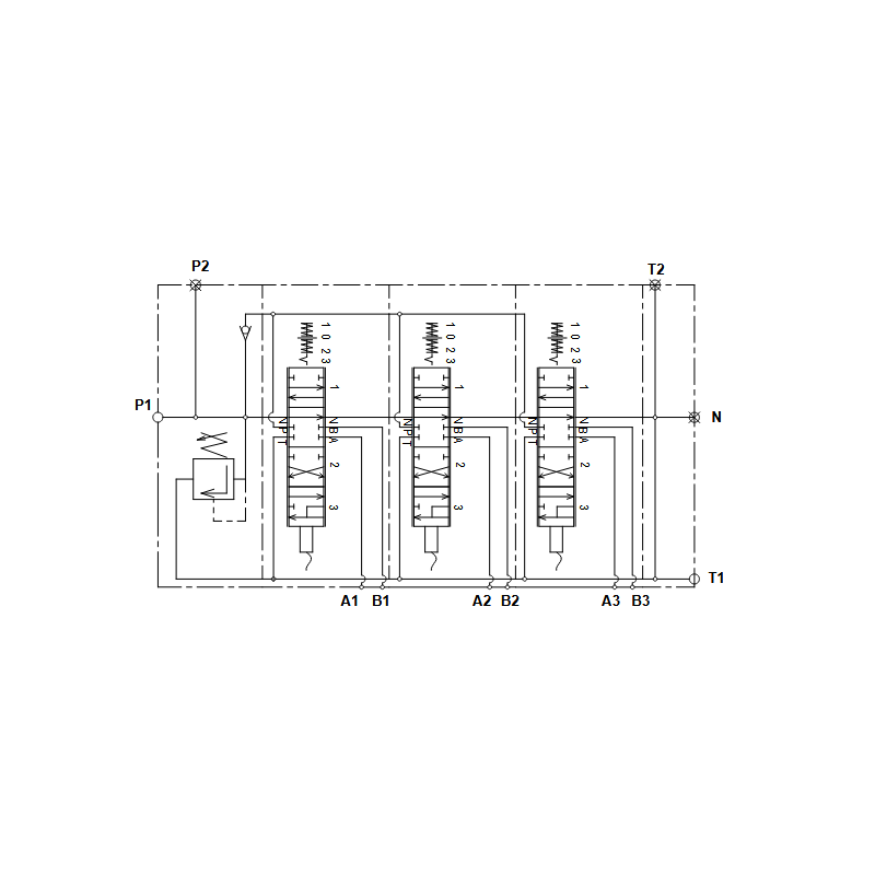
3-SEKČNÍ HYDRAULICKÝ ROZVÁDĚČ P160L/min

SE Zipem S DODATEČNOU PLOVOUCÍ POLOHOU

 

Symbol: 81.10.31.050
Výrobce: Badestnost
Aplikace:

Je široce používán v hydraulických systémech ve stavebnictví, zemědělství a průmyslu. Rozvaděč je přizpůsoben různým typům strojů jako jsou: zemědělské stroje, traktory, postřikovače, tourery, kyklopy, nakladače HDS, stavební stroje, nakladače, bagry, zametače, průmyslové stroje a další hydraulicky ovládaná zařízení.

Maximální průtok:

160 l/min

Řízení:

ovládání jednostranných a oboustranných válců

Ovládání pákou:

Všechny jezdce mají tři polohy (1 - 0 - 2), odpružené, to znamená, že se samy vrátí do neutrální polohy, pokud je lanko uvolněné.

  • Poloha 0 neutrál (lanko je uvolněné), pístnice válce stojí - olej jde do přepadu.
  • Pracovní poloha 1 (lanko táhne jezdec), pístnice válce se vysouvá.
  • Pracovní poloha 2 (lanko tlačí jezdec), pístnice válce se zasouvá.
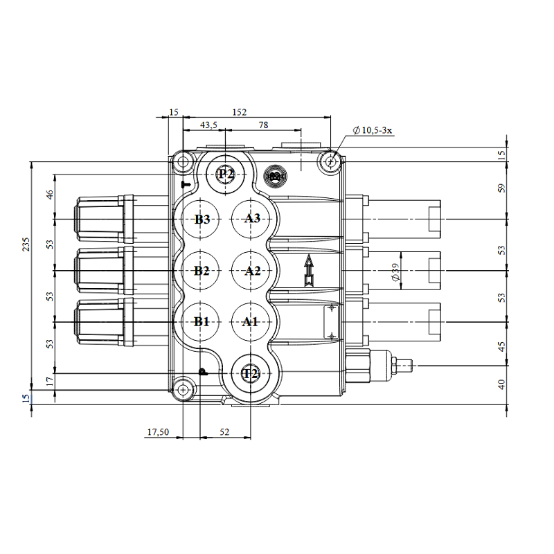
Vnitřní závity v těle:
  • Port P, T: G1"
  • Port AB: G 1"
  • Port N: M36x1,5
Maximální přívodní tlak:

250 barů

Maximální zpětný tlak:

50 barů

Maximální tlak na sekce:

300 barů

Přípustná okolní teplota:

-40 C až +60 C

Přípustná teplota oleje:

-15 C až +80 C

Doporučený hydraulický olej:

hydraulický olej na bázi minerálního oleje, např. HL 32 nebo HL 46

 
 
nahoru
Shop is in view mode
Zobrazit plnou verzi stránky
Sklep internetowy Shoper.pl